
Imagine seu negócio em 364,96 m² de puro impacto, onde o design contemporâneo e a história pulsante de Pinheiros se encontram. Na Rua João Moura, entre Faria Lima e Fradique Coutinho, cada metro quadrado é um convite ao sucesso.

Fluxo Contínuo e Qualificado
Milhares de pedestres todos os dias: executivos, jovens criativos e moradores de alto poder aquisitivo circulam pela rua em busca do novo.
Atração Gastronômica e Cultural
Bares, restaurantes premiados, galerias de arte e coworkings criam um ecossistema dinâmico, onde seu empreendimento estará no centro das atenções.
Infraestrutura Top de Linha
Próximo à Linha 4-Amarela e principais corredores de ônibus, com ciclovias e calçadas largas reforçando o apelo “walkable” do bairro.



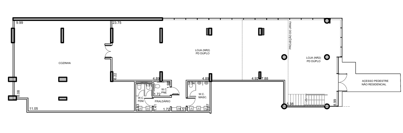
Pé-Direito Duplo no Térreo
Fachada imponente com até 7,88 m de altura livre, ideal para fachadas de vidro e letreiros luminosos que dominam o olhar.
Mezanino (Jirau) com 30% de Compartilhamento
5,38 m de extensão para escritórios executivos, lounge VIP ou estoque estratégico, mantendo a amplitude do salão principal.
Infraestrutura Completa
Cozinha de apoio e fraldário prontos, banheiros (masculino, feminino e PNE) dimensionados para alto fluxo, circulação fluida e acessibilidade total.
Banco ou Corretora de Investimentos
Ambiente perfeito para portas giratórias, blindagem, caixas de autoatendimento e salas de reunião no mezanino, a poucos passos da Faria Lima.
Loja de Smartphones e Eletrônicos Premium
Vitrine para lançamentos, área de reparo exclusiva no jirau e segurança reforçada para produtos de alto valor.
Joalheria e Relojoaria de Alto Luxo
Cenografia de iluminação, vitrines com pé-direito duplo e rotas de fuga discretas garantem a tranquilidade do cliente.
Bistrô ou Cafeteria Concept
Cozinha já estruturada e salão fluxado que convida a experiências sensoriais, com lounge exclusivo no mezanino para eventos fechados.
Clínica Estética e Spa Médico
Private rooms no mezanino, sala de recepção imponente no térreo, ambiente que respira exclusividade e conforto.
Não deixe que outro investidor garanta essa joia antes de você. Entre em contato agora e descubra como transformar essa planta em um case de sucesso.
Há mais de 40 anos, a Construtora Kallas e Kazzas Inc., tem transformado sonhos em realidade. A paixão por construir lares excepcionais é evidente em cada um dos nossos projetos. Com uma seleção exclusiva de apartamentos que combinam qualidade, conforto e inovação, estamos prontos para te ajudar a encontrar um lugar perfeito para viver seus melhores momentos.